School
Sketch model.
The assignment was to design an elementary school in the north-western part of Copenhagen, a socially problematic area of the city. Designing a school can in some ways be an exercise in designing an ideal world. I wanted to create a school with a special character for the school-children to remember in their journey up in the grown-up world. I decided to use intakes for creating special atmosphere.
On the one hand vertically to bring light down into the building. The chimneys work both as light wells, bringing natural light into the interior of the building and increases natural ventilation functioning therefore as thermal chimneys.
On the other hand I wanted to let the constructed mass shape itself in different directions on site and thereby horizontally frame the surroundings.
Sketch model.
The assignment was to design an elementary school in the north-western part of Copenhagen, a socially problematic area of the city. Designing a school can in some ways be an exercise in designing an ideal world. I wanted to create a school with a special character for the school-children to remember in their journey up in the grown-up world. I decided to use intakes for creating special atmosphere.
On the one hand vertically to bring light down into the building. The chimneys work both as light wells, bringing natural light into the interior of the building and increases natural ventilation functioning therefore as thermal chimneys.
On the other hand I wanted to let the constructed mass shape itself in different directions on site and thereby horizontally frame the surroundings.
Sketch model.
The assignment was to design an elementary school in the north-western part of Copenhagen, a socially problematic area of the city. Designing a school can in some ways be an exercise in designing an ideal world. I wanted to create a school with a special character for the school-children to remember in their journey up in the grown-up world. I decided to use intakes for creating special atmosphere.
On the one hand vertically to bring light down into the building. The chimneys work both as light wells, bringing natural light into the interior of the building and increases natural ventilation functioning therefore as thermal chimneys.
On the other hand I wanted to let the constructed mass shape itself in different directions on site and thereby horizontally frame the surroundings.
Sketch model.
The assignment was to design an elementary school in the north-western part of Copenhagen, a socially problematic area of the city. Designing a school can in some ways be an exercise in designing an ideal world. I wanted to create a school with a special character for the school-children to remember in their journey up in the grown-up world. I decided to use intakes for creating special atmosphere.
On the one hand vertically to bring light down into the building. The chimneys work both as light wells, bringing natural light into the interior of the building and increases natural ventilation functioning therefore as thermal chimneys.
On the other hand I wanted to let the constructed mass shape itself in different directions on site and thereby horizontally frame the surroundings.
Sketch rendering of the "Aula".
The assignment was to design an elementary school in the north-western part of Copenhagen, a socially problematic area of the city. Designing a school can in some ways be an exercise in designing an ideal world. I wanted to create a school with a special character for the school-children to remember in their journey up in the grown-up world. I decided to use intakes for creating special atmosphere.
On the one hand vertically to bring light down into the building. The chimneys work both as light wells, bringing natural light into the interior of the building and increases natural ventilation functioning therefore as thermal chimneys.
On the other hand I wanted to let the constructed mass shape itself in different directions on site and thereby horizontally frame the surroundings.
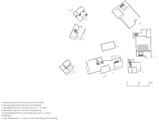
Ground floor functions.
The assignment was to design an elementary school in the north-western part of Copenhagen, a socially problematic area of the city. Designing a school can in some ways be an exercise in designing an ideal world. I wanted to create a school with a special character for the school-children to remember in their journey up in the grown-up world. I decided to use intakes for creating special atmosphere.
On the one hand vertically to bring light down into the building. The chimneys work both as light wells, bringing natural light into the interior of the building and increases natural ventilation functioning therefore as thermal chimneys.
On the other hand I wanted to let the constructed mass shape itself in different directions on site and thereby horizontally frame the surroundings.
Floor plans.
The assignment was to design an elementary school in the north-western part of Copenhagen, a socially problematic area of the city. Designing a school can in some ways be an exercise in designing an ideal world. I wanted to create a school with a special character for the school-children to remember in their journey up in the grown-up world. I decided to use intakes for creating special atmosphere.
On the one hand vertically to bring light down into the building. The chimneys work both as light wells, bringing natural light into the interior of the building and increases natural ventilation functioning therefore as thermal chimneys.
On the other hand I wanted to let the constructed mass shape itself in different directions on site and thereby horizontally frame the surroundings.
Model photo casted plaster model.
The assignment was to design an elementary school in the north-western part of Copenhagen, a socially problematic area of the city. Designing a school can in some ways be an exercise in designing an ideal world. I wanted to create a school with a special character for the school-children to remember in their journey up in the grown-up world. I decided to use intakes for creating special atmosphere.
On the one hand vertically to bring light down into the building. The chimneys work both as light wells, bringing natural light into the interior of the building and increases natural ventilation functioning therefore as thermal chimneys.
On the other hand I wanted to let the constructed mass shape itself in different directions on site and thereby horizontally frame the surroundings.
Model photo casted plaster model.
The assignment was to design an elementary school in the north-western part of Copenhagen, a socially problematic area of the city. Designing a school can in some ways be an exercise in designing an ideal world. I wanted to create a school with a special character for the school-children to remember in their journey up in the grown-up world. I decided to use intakes for creating special atmosphere.
On the one hand vertically to bring light down into the building. The chimneys work both as light wells, bringing natural light into the interior of the building and increases natural ventilation functioning therefore as thermal chimneys.
On the other hand I wanted to let the constructed mass shape itself in different directions on site and thereby horizontally frame the surroundings.
Model photo casted plaster model.
The assignment was to design an elementary school in the north-western part of Copenhagen, a socially problematic area of the city. Designing a school can in some ways be an exercise in designing an ideal world. I wanted to create a school with a special character for the school-children to remember in their journey up in the grown-up world. I decided to use intakes for creating special atmosphere.
On the one hand vertically to bring light down into the building. The chimneys work both as light wells, bringing natural light into the interior of the building and increases natural ventilation functioning therefore as thermal chimneys.
On the other hand I wanted to let the constructed mass shape itself in different directions on site and thereby horizontally frame the surroundings.
Rendering from 3D-model.
The assignment was to design an elementary school in the north-western part of Copenhagen, a socially problematic area of the city. Designing a school can in some ways be an exercise in designing an ideal world. I wanted to create a school with a special character for the school-children to remember in their journey up in the grown-up world. I decided to use intakes for creating special atmosphere.
On the one hand vertically to bring light down into the building. The chimneys work both as light wells, bringing natural light into the interior of the building and increases natural ventilation functioning therefore as thermal chimneys.
On the other hand I wanted to let the constructed mass shape itself in different directions on site and thereby horizontally frame the surroundings.
Rendering from 3D-model.
The assignment was to design an elementary school in the north-western part of Copenhagen, a socially problematic area of the city. Designing a school can in some ways be an exercise in designing an ideal world. I wanted to create a school with a special character for the school-children to remember in their journey up in the grown-up world. I decided to use intakes for creating special atmosphere.
On the one hand vertically to bring light down into the building. The chimneys work both as light wells, bringing natural light into the interior of the building and increases natural ventilation functioning therefore as thermal chimneys.
On the other hand I wanted to let the constructed mass shape itself in different directions on site and thereby horizontally frame the surroundings.
Section-rendering from 3D-model.
The assignment was to design an elementary school in the north-western part of Copenhagen, a socially problematic area of the city. Designing a school can in some ways be an exercise in designing an ideal world. I wanted to create a school with a special character for the school-children to remember in their journey up in the grown-up world. I decided to use intakes for creating special atmosphere.
On the one hand vertically to bring light down into the building. The chimneys work both as light wells, bringing natural light into the interior of the building and increases natural ventilation functioning therefore as thermal chimneys.
On the other hand I wanted to let the constructed mass shape itself in different directions on site and thereby horizontally frame the surroundings.
Section-rendering from 3D-model.
The assignment was to design an elementary school in the north-western part of Copenhagen, a socially problematic area of the city. Designing a school can in some ways be an exercise in designing an ideal world. I wanted to create a school with a special character for the school-children to remember in their journey up in the grown-up world. I decided to use intakes for creating special atmosphere.
On the one hand vertically to bring light down into the building. The chimneys work both as light wells, bringing natural light into the interior of the building and increases natural ventilation functioning therefore as thermal chimneys.
On the other hand I wanted to let the constructed mass shape itself in different directions on site and thereby horizontally frame the surroundings.
Section-rendering for presentation.
The assignment was to design an elementary school in the north-western part of Copenhagen, a socially problematic area of the city. Designing a school can in some ways be an exercise in designing an ideal world. I wanted to create a school with a special character for the school-children to remember in their journey up in the grown-up world. I decided to use intakes for creating special atmosphere.
On the one hand vertically to bring light down into the building. The chimneys work both as light wells, bringing natural light into the interior of the building and increases natural ventilation functioning therefore as thermal chimneys.
On the other hand I wanted to let the constructed mass shape itself in different directions on site and thereby horizontally frame the surroundings.
Detail drawing.
The assignment was to design an elementary school in the north-western part of Copenhagen, a socially problematic area of the city. Designing a school can in some ways be an exercise in designing an ideal world. I wanted to create a school with a special character for the school-children to remember in their journey up in the grown-up world. I decided to use intakes for creating special atmosphere.
On the one hand vertically to bring light down into the building. The chimneys work both as light wells, bringing natural light into the interior of the building and increases natural ventilation functioning therefore as thermal chimneys.
On the other hand I wanted to let the constructed mass shape itself in different directions on site and thereby horizontally frame the surroundings.
Detail drawing.
The assignment was to design an elementary school in the north-western part of Copenhagen, a socially problematic area of the city. Designing a school can in some ways be an exercise in designing an ideal world. I wanted to create a school with a special character for the school-children to remember in their journey up in the grown-up world. I decided to use intakes for creating special atmosphere.
On the one hand vertically to bring light down into the building. The chimneys work both as light wells, bringing natural light into the interior of the building and increases natural ventilation functioning therefore as thermal chimneys.
On the other hand I wanted to let the constructed mass shape itself in different directions on site and thereby horizontally frame the surroundings.
Illustration from one of the class rooms.
The assignment was to design an elementary school in the north-western part of Copenhagen, a socially problematic area of the city. Designing a school can in some ways be an exercise in designing an ideal world. I wanted to create a school with a special character for the school-children to remember in their journey up in the grown-up world. I decided to use intakes for creating special atmosphere.
On the one hand vertically to bring light down into the building. The chimneys work both as light wells, bringing natural light into the interior of the building and increases natural ventilation functioning therefore as thermal chimneys.
On the other hand I wanted to let the constructed mass shape itself in different directions on site and thereby horizontally frame the surroundings.
Illustration from one of the chimneys.
The assignment was to design an elementary school in the north-western part of Copenhagen, a socially problematic area of the city. Designing a school can in some ways be an exercise in designing an ideal world. I wanted to create a school with a special character for the school-children to remember in their journey up in the grown-up world. I decided to use intakes for creating special atmosphere.
On the one hand vertically to bring light down into the building. The chimneys work both as light wells, bringing natural light into the interior of the building and increases natural ventilation functioning therefore as thermal chimneys.
On the other hand I wanted to let the constructed mass shape itself in different directions on site and thereby horizontally frame the surroundings.
Graphic line drawing with pencil A2.
The assignment was to design an elementary school in the north-western part of Copenhagen, a socially problematic area of the city. Designing a school can in some ways be an exercise in designing an ideal world. I wanted to create a school with a special character for the school-children to remember in their journey up in the grown-up world. I decided to use intakes for creating special atmosphere.
On the one hand vertically to bring light down into the building. The chimneys work both as light wells, bringing natural light into the interior of the building and increases natural ventilation functioning therefore as thermal chimneys.
On the other hand I wanted to let the constructed mass shape itself in different directions on site and thereby horizontally frame the surroundings.
<
>