Carlsberg lobby
Inspirational aquarelle sketch.
Based on the master-plan for the intended transformation of the old Carlsberg brewery area, our task was to design a lobby connecting a hotel, a restaurant and a tower with the plaza on ground level, and the train station on basement level. My aim was to keep the lobby-space as simple as possible, focusing on the dynamics created by the users. Filtering the light through inserted beams in the southern facade, the aim was to let these high, robust, intakes create a steady and slowly changing atmosphere. This was to stand in contrast to the faster rythms of commuters, travellers and workers. The outer facade, seen from the train, expresses itself vertically with lines which continue the crossing beams of the railway.
Light studies in sketch model.
Based on the master-plan for the intended transformation of the old Carlsberg brewery area, our task was to design a lobby connecting a hotel, a restaurant and a tower with the plaza on ground level, and the train station on basement level. My aim was to keep the lobby-space as simple as possible, focusing on the dynamics created by the users. Filtering the light through inserted beams in the southern facade, the aim was to let these high, robust, intakes create a steady and slowly changing atmosphere. This was to stand in contrast to the faster rythms of commuters, travellers and workers. The outer facade, seen from the train, expresses itself vertically with lines which continue the crossing beams of the railway.
First basement and connection to the trains.
Based on the master-plan for the intended transformation of the old Carlsberg brewery area, our task was to design a lobby connecting a hotel, a restaurant and a tower with the plaza on ground level, and the train station on basement level. My aim was to keep the lobby-space as simple as possible, focusing on the dynamics created by the users. Filtering the light through inserted beams in the southern facade, the aim was to let these high, robust, intakes create a steady and slowly changing atmosphere. This was to stand in contrast to the faster rythms of commuters, travellers and workers. The outer facade, seen from the train, expresses itself vertically with lines which continue the crossing beams of the railway.
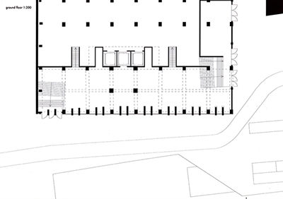
Ground floor plan and connection to the plazas.
Based on the master-plan for the intended transformation of the old Carlsberg brewery area, our task was to design a lobby connecting a hotel, a restaurant and a tower with the plaza on ground level, and the train station on basement level. My aim was to keep the lobby-space as simple as possible, focusing on the dynamics created by the users. Filtering the light through inserted beams in the southern facade, the aim was to let these high, robust, intakes create a steady and slowly changing atmosphere. This was to stand in contrast to the faster rythms of commuters, travellers and workers. The outer facade, seen from the train, expresses itself vertically with lines which continue the crossing beams of the railway.
Longitudinal section through the lobby.
Based on the master-plan for the intended transformation of the old Carlsberg brewery area, our task was to design a lobby connecting a hotel, a restaurant and a tower with the plaza on ground level, and the train station on basement level. My aim was to keep the lobby-space as simple as possible, focusing on the dynamics created by the users. Filtering the light through inserted beams in the southern facade, the aim was to let these high, robust, intakes create a steady and slowly changing atmosphere. This was to stand in contrast to the faster rythms of commuters, travellers and workers. The outer facade, seen from the train, expresses itself vertically with lines which continue the crossing beams of the railway.
Cross section through the lobby.
Based on the master-plan for the intended transformation of the old Carlsberg brewery area, our task was to design a lobby connecting a hotel, a restaurant and a tower with the plaza on ground level, and the train station on basement level. My aim was to keep the lobby-space as simple as possible, focusing on the dynamics created by the users. Filtering the light through inserted beams in the southern facade, the aim was to let these high, robust, intakes create a steady and slowly changing atmosphere. This was to stand in contrast to the faster rythms of commuters, travellers and workers. The outer facade, seen from the train, expresses itself vertically with lines which continue the crossing beams of the railway.
Movement collage.
Based on the master-plan for the intended transformation of the old Carlsberg brewery area, our task was to design a lobby connecting a hotel, a restaurant and a tower with the plaza on ground level, and the train station on basement level. My aim was to keep the lobby-space as simple as possible, focusing on the dynamics created by the users. Filtering the light through inserted beams in the southern facade, the aim was to let these high, robust, intakes create a steady and slowly changing atmosphere. This was to stand in contrast to the faster rythms of commuters, travellers and workers. The outer facade, seen from the train, expresses itself vertically with lines which continue the crossing beams of the railway.
<
>